|
|
.
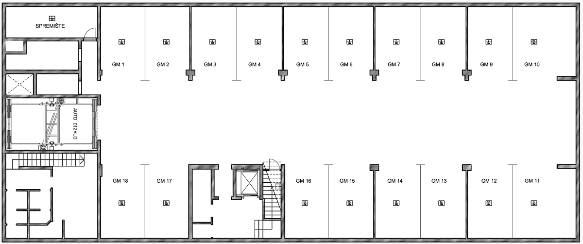
Maksimir, Stambena zgrada, parkirni prostor, Podrum -1
| |
|
|
|
| |
 |
|
|
| |
|
|
| |
|
|
| |
|
|
| |
|
|
| |
|
|
| |
|
|
| |
|
|
| |
|
|
| |
|
|
| |
|
|
| |
|
|
| |
|
|
| |
|
|
|
| |
Površina, garažno mjesto 1 (GM1): |
15,22 m2 |
|
|
|
|
|
|
| |
Površina, garažno mjesto 2 (GM2): |
15,22 m2 |
|
|
|
|
|
|
| |
Površina, garažno mjesto 3 (GM3): |
15,50 m2 |
|
|
|
|
|
|
| |
Površina, garažno mjesto 4 (GM4): |
15,50 m2 |
|
|
|
|
|
|
| |
Površina, garažno mjesto 5 (GM5): |
15,26 m2 |
|
|
|
|
|
|
| |
Površina, garažno mjesto 6 (GM6): |
15,37 m2 |
|
|
|
|
|
|
| |
Površina, garažno mjesto 7 (GM7): |
15,37 m2 |
|
|
|
|
|
|
| |
Površina, garažno mjesto 8 (GM8): |
15,62 m2 |
|
|
|
|
|
|
| |
Površina, garažno mjesto 9 (GM9): |
15,37 m2 |
|
|
|
|
|
|
| |
Površina, garažno mjesto 10 (GM10): |
21,45 m2 |
|
|
|
|
|
|
| |
Površina, garažno mjesto 11 (GM11): |
21,45 m2 |
|
|
|
|
|
|
| |
Površina, garažno mjesto 12 (GM12): |
15,39 m2 |
|
|
|
|
|
|
| |
Površina, garažno mjesto 13 (GM13): |
15,54 m2 |
|
|
|
|
|
|
| |
Površina, garažno mjesto 14 (GM14): |
15,49 m2 |
|
|
|
|
|
|
| |
Površina, garažno mjesto 15 (GM15): |
15,41 m2 |
|
|
|
|
|
|
| |
Površina, garažno mjesto 16 (GM16): |
14,96 m2 |
|
|
|
|
|
|
| |
Površina, garažno mjesto 17 (GM17): |
15,01 m2 |
|
|
|
|
|
|
| |
Površina, garažno mjesto 18 (GM18): |
15,14 m2 |
|
|
|
|
|
|
| |
Kompletni podaci: |
POGM.pdf |
|
|
|
|
|
|
Maksimir, Stambena zgrada, vanjski parkirni prostor, Prizemlje
| |
|
|
|
| |
 |
|
|
| |
|
|
| |
|
|
| |
|
|
| |
|
|
| |
|
|
| |
|
|
| |
|
|
| |
|
|
| |
|
|
| |
|
|
| |
|
|
| |
|
|
| |
|
|
|
| |
Površina, parkirno mjesto 1 (PM1): |
12,00 m2 |
|
|
|
|
|
|
| |
Površina, parkirno mjesto 2 (PM2): |
12,00 m2 |
|
|
|
|
|
|
| |
Površina, parkirno mjesto 3 (PM3): |
12,92 m2 |
|
|
|
|
|
|
| |
Površina, parkirno mjesto 4 (PM4): |
11,92 m2 |
|
|
|
|
|
|
| |
Kompletni podaci: |
PRPM.pdf |
|
|
|
|
|
|
Maksimir projekt ©2010 Sva prava pridržana.
Izrada weba: Bubble Consulting
|
|